Stalp Iluminat Stradal Galvanizat Flansa 8 Metri
Stalp Iluminat Stradal Galvanizat Flansa 8 Metri
Stalp Iluminat Stradal Galvanizat Flansa 8 Metri

Stalp Iluminat Stradal Galvanizat Flansa 8 Metri

1.849,00 lei
taxa timbru verde inclusa in pret
27 persoane urmaresc acest produs
  • Valabilitate:
    In stoc
  • Cod Produs:
    EL0017654
Distribuiți
  • Livrare in toata tara:2-4 zile lucratoare!, transport unic pentru comenzi sub 500 lei 19.99 lei prin fan curier!

  • Transport gratuit: la comenzi de peste 500 de lei

  • Program: L-V: 10.00-18.00 / Sâmbăta 10.00-16.00
  • Pentru mai multe detalii și informații nu ezitați sa ne contactați pe numarul de whatsapp afisat mai sus!
Stalp Iluminat Stradal Galvanizat Flansa 8 Metri

Stalp Iluminat Stradal Galvanizat Flansa 8 Metri

1.849,00 lei
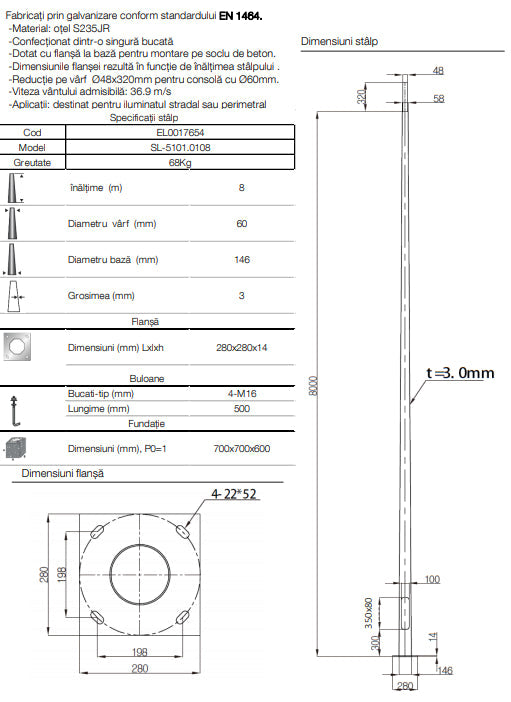
Descrierea produsului

Pentru toti stalpii de iluminat costul transportului va fi discutat ulterior, el poate varia in functie de lungimea stalpului si destinatia livrarii!

Setul de prindere nu este inclus!

  • Inălțime (m)                                               8
  • Greutate(kg)                                              68
  • Diametru vârf (mm)                                60
  • Diametru bază (mm)                               146
  • Grosimea (mm)                                         3
  • Dimensiuni flansa (mm) Lxlxh             280x280x10
  • Usa de vizitare                                           DA
  • Dimensiuni fundatie (mm)                   800x800x600
Livrare și retur